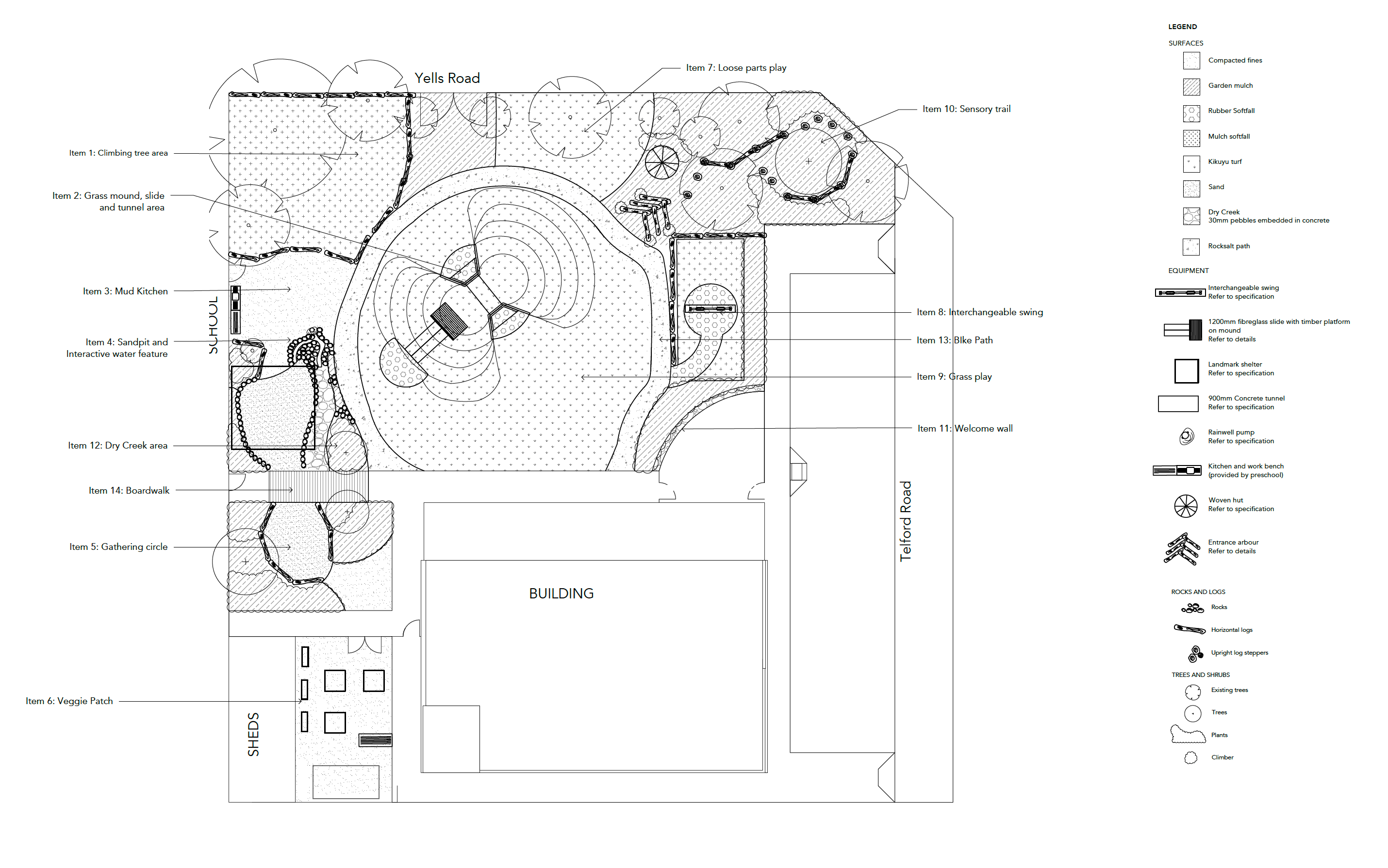
MOORAK PRESCHOOL
OUTDOOR LEARNING AREA
MOORAK PRESCHOOL
OUTDOOR LEARNING AREA
Yells Road, Moorak SA 5291
Item 1: Climbing trees 300mm loose fill softfall under existing trees
Item 2: Mound, slide and tunnel. Mound at highest point 1000mm above ground level. 800mm diameter concrete pipe embedded. Balustrade to mound above pipe opening. concrete stepping stones to circular bike path. Embankment slide.
Item 3: Mud kitchen :Existing mud kitchen bench to be relocated from Preschool. Ground surfacing to be cement stablised sandstone
Item 10: Sensory trail : Sensory planting, varying height log steppers, steel framed woven hut (proprietary item).
Item 4: Sandpit and IWF : Interactive water feature with backflow prevention. Sandpit with minimum depth 500mm, geotextile fabric, gravel sub base, ag drain connected to stormwater drainage. Proprietary shade structure over. Boulder edging varying dimensions (300-700mm across and 300-450mm high) with sharp edges rounded off.
Item 5: Gathering circle : Extension of sandpit to above details. Timber log seating to perimeter.
Item 6: Veggie patch : 3 large and 3 small modular raised planter boxes. No sharp edges or corners. Trellis frame to eastern wall of storage shed.
Item 7: Loose parts : Retain existing trees. Natural turf and mulch ground surfacing for loose parts construction.
Item 8: Swing frame: Timber frame with four hooks, unitary surfacing soft fall and access pathway for universal access. Loose fill to remaining impact attenuation.
Item 9: Grass play: Natural turf area including irrigation.
Item 10: Sensory trail: Sensory planting, varying height log steppers, steel framed woven hut (proprietary item)
Item 11: Welcome wall: Curved Mount Gambier limestone entry wall, 1200mm height with entry signage.
Item 12: Dry Creek Bed: Form dry creek bed with smooth pebbles (greater than 30mm diameter) embedded in concrete base. provide drainage pit at lowest points with grated lid connected to stormwater
